MAATWERK: Blokhut - Tuinhuis Javea | 44 mm | onbehandeld
---MAATWERK BLOKHUTTEN---
MAAK SNEL EEN VRIJBLIJVENDE AFSPRAAK
11.518,00€
- Aantal
- 1
- Verzendingskost
-
Gratis naar Belgium
vrachtwagen
Andere verzendmethodes
- Selecteer land
- Postcode
- Aantal
Verkoper Info
goedkoopblokhut (0)
- Geregistreerd sinds
- 27.06.2017 06:45:18
- Feedback
- n/a
- Andere Items weergeven
Beschrijving
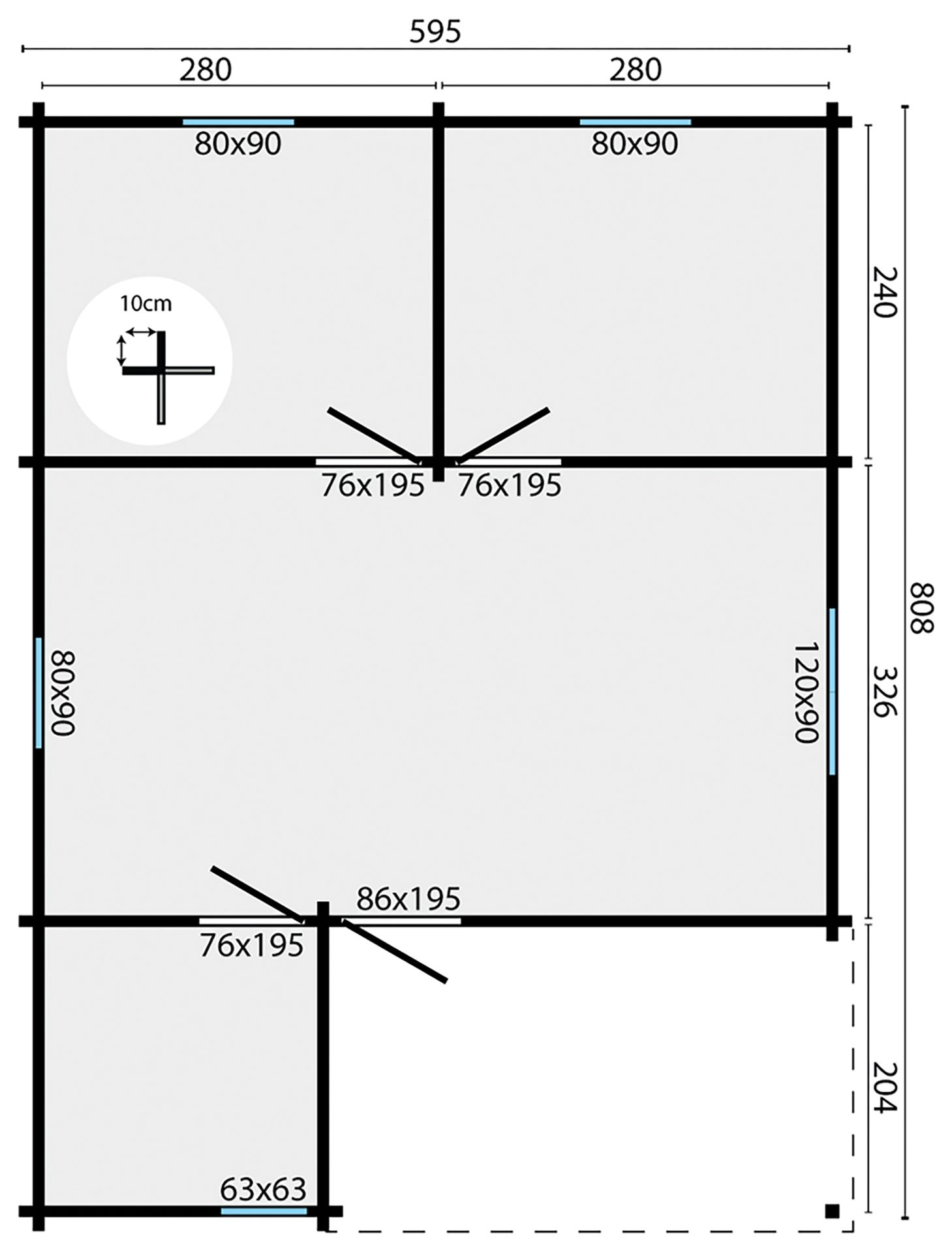
blokhut Javea 595x808 cm heeft een mooie luifel van 204 cm aan de voorkant die u naar eigen wens kunt benutten. Zo kunnen er bijvoorbeeld nog spullen aan de voorkant van deze blokhut droog staan of creëert u een leefomgeving voor extra sfeer. Met de wind- en waterdichte hoekverbindingen blijven al uw spullen veilig en droog staan.
Blokhut Javea van Tuindeco wordt standaard blank uitgevoerd in 44 mm wanddelen, met enkele deuren en dubbel glas. De blokhut heeft 4 enkele deuren, waarvan 3 binnendeuren met een afmeting van 76x195 cm en 1 buitendeur met een afmeting van 86x195 cm. Met een mooie oppervlakte van 595x808 cm heeft de blokhut veel bergruimte voor een lage prijs. Er wordt zelfs een bouwtekening meegeleverd, zodat u de blokhut ook zelf kunt opbouwen.
U kunt er ook voor kiezen of u tegen betaling funderingsbalken aan de Tuindeco-blokhut wilt toevoegen. Hier heeft u de keuze uit hardhouten of composiet. Er is ook de optie om geen funderingsbalken toe te voegen, echter raden wij dit wel aan. Het aanschaffen van funderingsbalken verlengt de levensduur en tevens uw genot van de blokhut Javea.
Veilige en droge berging
Geschikt om zelf op te bouwen
Hoge kwaliteit voor een lage prijs
Multifunctioneel door groot oppervlak
Specificaties
- nieuw of tweedehands:
- nieuw
Betalingen en retouren
- Betalingswijze(n) (GRATIS)
- Direct Payment (Bankoverschrijving)
Verzending(s)(kost)
- Locatie voorwerp
- 3670, LIMBURG, Belgïe
- Wordt verzonden naar
- Belgïe
- Afhalingen
- Geen afhaling mogelijk
- Verzendinstructies
- -
- Retour aanvaard (J/N)
- Nee
Bericht
Nieuw goedkoop landelijk tuinhuis Croft met overkapping te koop en thuislevering door goedkooptuinhuis.
goedkoopblokhut (0)
Nieuw goedkoop strak tuinhuis met plat dak en in thermo ayous uigevoerd. Gratis thuislevering door goedkooptuinhuis.
goedkoopblokhut (0)
Nieuw goedkoop tuinhuis Bertil met overkapping te koop en gratis thuislevering door goedkooptuinhuis.
goedkoopblokhut (0)